欢迎访问深圳市港艺模型艺术设计有限公司官网!
专业设计制作沙盘模型21

香港 · 深圳 · 南昌 · 昆明

客户服务热线:0755-21070727 18823675588

首页 - 新闻动态 - 公司新闻

港艺中标:万科集团-晋江万科·金域国际项目

发布时间:2021-08-05

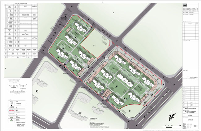
1.jpg

     作为标杆房企代表的万科,曾一度被视为业内风向标,为更好地服务人民美好生活需要、实现可持续发展奠定了良好基础,始终坚持为普通人提供好产品、好服务,通过自身努力,为满足人民对美好生活的各方面需求,做出力所能及的贡献。坚持“为普通人盖好房子,盖有人用的房子”,深入践行“城乡建设与生活服务商”战略,持续创造真实价值,力争成为无愧于伟大新时代的好企业。

2.jpg

     泉州位于福建省东南沿海,南临台湾海峡,主要植物特色为亚热带玉林风貌,东临海洋,属亚热带海洋性季风气候,气候条件优越,气候资源丰富,俗称“八山一水一分田”是古代“东方[敏感词]大港”、“海上丝绸之路”的起点。

3.jpg

     万科·金域国际项目选址泉州晋江市世纪大道片区,世纪大道片区在2019年成为全国综合实力百强区,是晋江市的商业中心、行政中心、文化中心、是当前为成熟的版块;区域基地位于泉州晋江国际机场西侧,项目西临泉厦高速,南临泉州环城高速。交通网络通达全城,轨道交通发达,与市区快速联通,出门即享繁华便捷生活。

4.jpg

     项目周边有世纪公园、敏月公园、八仙山公园、罗裳山生态公园相佐,构建出林木、清新空气为一体的绿色生态系统,近可观城市车水马龙,远可眺生态园林景致,坐拥晋江旖旎风光。

5.jpg

     万科·金域国际项目毗邻晋江市实验中学、凤埯小学、育德小学、晋江市第六实验小学、乐贝尔幼儿园、红黄蓝安泰世界城幼儿园等优质学府,近拥书香馥郁之地,体验目送式教育形式,领航菁英式未来。

6.jpg

     万科物业也是金域国际的一大亮点,万科物业作为中国口碑[敏感词]的物业公司之一,连续10年蝉联中国物业服务百强TOP1,领创时代有回应,处处有保障的多场景、多服务、多产品的社区生活新价值,建设健康丰盛的人居环境,将品质生活紧密相连,创造化时代的幸福生活范本。

7.jpg

     港艺科技模型再次携手万科集团,港艺的工匠们一定会不负众望,匠心将万科·金域国际项目设计出极具震撼的模型视觉盛宴。我们善于运用[敏感词]科技技术于其中,将城市生活极大程度的还原在观者眼前,创造一个充满现代感、未来感和品质感的艺术空间。